{{curreentCase.CaseSelected.Header}}

Fünf Sheddach-Lichtbänder für lichtdurchflutete und energieoptimierte Büros und Dienstleistungsflächen

Die ehemalige Produktionsstätte der Wollzwirnerei Bucher wurde durch Blum und Grossenbacher Architekten auf Wunsch der Abendrot Stiftung als Eigentümerin als gemischtgenutzes Quartier mit Wohnen und Büroflächen einer neuen und zeitgemäßen Nutzung zugeführt.

Wichtiger Bestandteil des Ensembles ist eine Industrie- und Lagerhalle aus dem Jahr 1917. Diese wurde räumlich in einzelne Nutzungseinheiten unterteilt, die nun moderne Büros und Wohnungen mit Loftcharakter bieten. Wie das komplette Objekt wurde auch die denkmalgeschützte Halle nur an wirklich nötigen Stellen verändert und die alte Struktur sehr sensibel mit nachhaltigen und robusten Materialien wieder instandgesetzt.

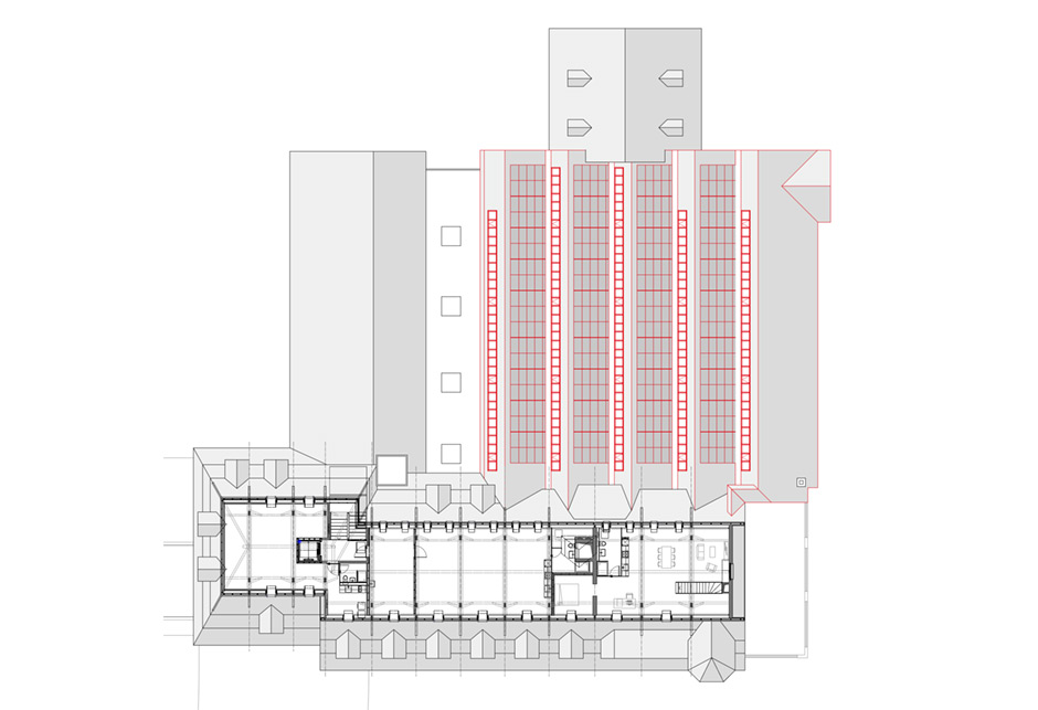
Darunter auch das ehemalige Industriesheddach, dessen äußere Oberlichter durch fünf moderne Sheddach-Lichtbänder des Systems VELUX Modular Skylights ersetzt und nach außen isoliert wurden. Eine hochwertige Sonnen-und Wärmeschutzverglasung reguliert den Licht- und Wärmeeinfall, über VELUX Integra automatisch zu öffnende Module dienen der Belüftung. 

Neben den funktionalen Anpassungen der Räumlichkeiten an die neue Nutzung wurden die Gebäudehülle und das Dach energetisch saniert sowie die Erschließung u.a. mit einem Lift neu organisiert. Das Bucher Areal ist nun ein modernes Quartier, das jedoch weiterhin mit dem industriellen Charakter eines denkmalgeschützten Gebäudes sichtbar auf seine historische Vergangenheit verweist. 

Bautafel


{{property.PropertyName}}

{{pValue.PropertyValue}}

Architekturzeichnungen

Im Projekt verwendete Produkte

5 x Sheddach-Lichtband 60°

Sheddach-Lichtband 25°–90°

Das Glasdach-System für Pult- und Sheddächer

Darstellung der Sheddach-Lichtband-Lösung Mehr erfahren

Anzahl der Module: 160
2 x Sheddach-Lichtband 25°–90° mit 23 x 750x1400 mm + 12 x675x1400 mm
3 x Sheddach-Lichtband 25°–90° mit 20 x 750x1400 mm + 10 x 675x1400 mm

Spezielle Verglasung: TG-Sun1-17T; 3-fach-Verglasung mit leichtem Sonnenschutz

Sheddach-Lichtband 25°–90°

Das Glasdach-System für Pult- und Sheddächer

Darstellung der Sheddach-Lichtband-Lösung Mehr erfahren

Markus Näff

Stiftung Abendrot

Die schlanken Profile und der modulare Aufbau der VELUX Modular Skylights waren von Vorteil, dadurch konnten die Verglasung rationell montiert werden. Die integrierten Lüftungsflügel und das Preis-Leistungsverhältnis zählten als weitere Argumente für das System.

Michael Brügger

Blum und Grossenbacher Architekten AG

Die Lichtbänder sind von zentraler Bedeutung für die Innenräume sowohl bei der historischen wie auch der heutigen Nutzung. Durch die Nordwest-Ausrichtung werden die Räume angenehm und ausreichend mit Tageslicht belichtet und erlauben eine zeitgemäße Nutzung.

Neue Dachhaut auf alter Tragstruktur

In Absprache mit der Denkmalpflege erfolgten alle äusseren Eingriffe sehr behutsam.

Die Dachfläche der alten Industriesheds wurde isoliert, zur Belichtung der Innenräume wurden insgesamt 160 VELUX Modular Skylights-Module, verteilt auf fünf Sheddach-Lichtbänder, angeordnet. Die Flachstahl-Unterkonstruktion der Fenstermodule konnte dabei auf die bestehende Sparrenlage aufgebracht werden.

Die Dacheindeckung wurde in Anlehnung an den Bestand mit roten Flachschiebeziegeln ausgeführt. Eine dezente Indach-Photovoltaikanlage sorgt nun zusätzlich für eine verbesserte Energiebilanz des Ensembles. 


Das modulare System-Icon

Das modulare System

Erfahren Sie mehr über Modularität, die wichtigsten Vorteile und unsere Zusammenarbeit mit Foster + Partners.

Entdecken Sie das modulare System
Projektunterstützung für VELUX Modular Skylights-Icon

Wir helfen Ihnen gerne.

Unsere Experten für Tageslicht-Systeme begleiten Sie durch den gesamten Prozess vom Entwurf bis zum Einbau.

Projektunterstützung

Lassen Sie sich inspirieren