{{curreentCase.CaseSelected.Header}}

Holz trifft auf Tageslicht

Rooflight solution with Ridgelight 25-40˚ modules, Von der Konstruktion über die Fassade bis zum Innenausbau demonstriert der Anbau des Verwaltungsbaus, was Holz aus einheimischen Wäldern in modernen Gebäuden zu leisten vermag.

Bei der Erweiterung der Behörde blieb das historische Hauptgebäude aus dem Jahr 1923 erhalten, der zusätzliche Raumbedarf konnte mit einem Annexbau realisiert werden.

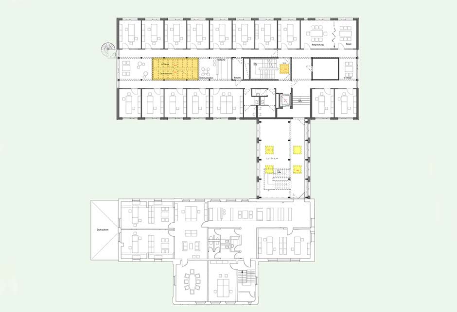
Die Mitte des dreigeschossigen Bürogebäudes bildet eine Multizone, die über alle Geschosse räumlich verbunden ist und mit VELUX Modular Skylights belichtet wird.  

  • Ein Sattel-Lichtband, das als eigenständiges Element auf das Flachdach aufgesetzt ist, versorgt diese Zone mit natürlichem Tageslicht und dient der Be- und Entlüftung.
  • Die Montage der 18 Velux Modular Skylights konnte durch die modulare Bauweise von zwei Zimmerleuten in kürzester Zeit durchgeführt werden. 

Im Verbindungstrakt zwischen Alt- und Neubau wurden zusätzlich  mehrere Velux Flachdach-Fenster, teilweise mit RWA-Funktion, angeordnet.

Bautafel


{{property.PropertyName}}

{{pValue.PropertyValue}}

Architekturzeichnungen

Im Projekt verwendete Produkte

1 x Sattel-Lichtband

Sattel-Lichtband 25°–40°

Sattel-Lichtdach-Lösungen für den Einbau auf einem Flachdach oder an einer Überfirstverglasung.

Darstellung einer Sattel-Lichtband-Lösung Mehr erfahren

Anzahl der Module: 18

Sattel-Lichtband 25°–40°

Sattel-Lichtdach-Lösungen für den Einbau auf einem Flachdach oder an einer Überfirstverglasung.

Darstellung einer Sattel-Lichtband-Lösung Mehr erfahren

Heiko Seen von der HU

Geschäftsführer, Holzunion

Da dies unsere erste Anlage dieser Art war, hat uns ein Velux Mitarbeiter beim Einbau beratend zur Seite gestanden. Das ist sehr guter Service des Herstellers.

Das modulare System-Icon

Das modulare System

Erfahren Sie mehr über Modularität, die wichtigsten Vorteile und unsere Zusammenarbeit mit Foster + Partners.

Entdecken Sie das modulare System
Projektunterstützung für VELUX Modular Skylights-Icon

Wir helfen Ihnen gerne.

Unsere Experten für Tageslicht-Systeme begleiten Sie durch den gesamten Prozess vom Entwurf bis zum Einbau.

Projektunterstützung

Lassen Sie sich inspirieren