{{curreentCase.CaseSelected.Header}}

Ein Ort der Barmherzigkeit

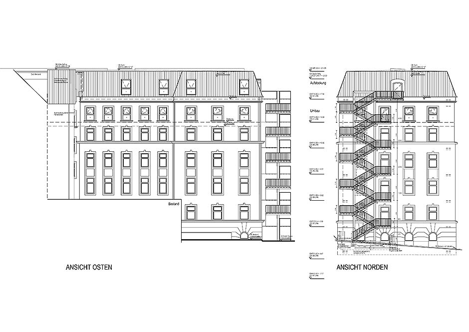
Der verzweigte Gebäudekomplex des AGAPLESION BETHESDA KRANKENHAUSES in Wuppertal dokumentiert unübersehbar die lange Geschichte der Klinik, die im Jahr 1886 als »Bethesdaverein für allgemeine Krankenpflege zu Elberfeld« ihren Anfang nahm. 

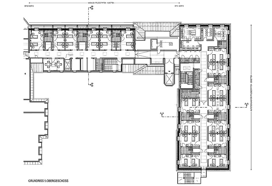
Für die dringend nötige Erweiterung seiner Pflegestationen beschloss der Träger des AGAPLESION BETHESDA KRANKENHAUSES in Wuppertal, einen bestehenden Gebäudetrakt um ein Dachgeschoss mit Mansarddach aufzustocken. Für viel Tageslicht im innenliegenden Flur der neuen Station sorgen nun zwei jeweils aus 15 Modulen bestehende Lichtbänder des Systems Velux Modular Skylights. Die von oben einfallenden Sonnenstrahlen und der ungehinderten Blick in den Himmel werden sowohl vom Personal als auch von den Patienten sehr geschätzt und fördern ihr Wohlbefinden und die Genesung.

Bautafel


{{property.PropertyName}}

{{pValue.PropertyValue}}

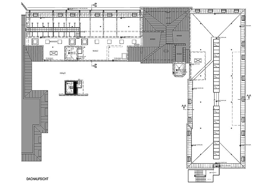
Architekturzeichnungen

Im Projekt verwendete Produkte

2 x Lichtband

Lichtband 5°–30°

Eine einfach geneigte Lösung, ideal für Flach- und Pultdächer.

Darstellung der Lichtband-Lösung Mehr erfahren

Anzahl der Module: 30

Lichtband 5°–30°

Eine einfach geneigte Lösung, ideal für Flach- und Pultdächer.

Darstellung der Lichtband-Lösung Mehr erfahren

Georg Schmidt

Geschäftsführer AGAPLESION BETHESDA KRANKENHAUSES gGmbH

Es liegt uns sehr am Herzen, dass sich unsere Patienten wohl und gut aufgehoben fühlen – sowohl medizinisch als auch emotional. Das neue Lichtband wirkt sich positiv auf das Wohlbefinden und die Genesung unserer Patienten aus und erhöht unsere Attraktivität in der Region.

Das modulare System-Icon

Das modulare System

Erfahren Sie mehr über Modularität, die wichtigsten Vorteile und unsere Zusammenarbeit mit Foster + Partners.

Entdecken Sie das modulare System
Projektunterstützung für VELUX Modular Skylights-Icon

Wir helfen Ihnen gerne.

Unsere Experten für Tageslicht-Systeme begleiten Sie durch den gesamten Prozess vom Entwurf bis zum Einbau.

Projektunterstützung

Lassen Sie sich inspirieren