{{curreentCase.CaseSelected.Header}}

Indoor-Shopping mit Open-Air-Feeling: 64 Sattel-Lichtband-Module prägen das Zentrum der lichtdurchfluteten Shoppingmall

Mit dem Lister Markt errichteten die Planer der IGA Haus GmbH & Co. KG im nördlichsten Dorf der Insel Sylt ein neues Einzelhandels- und Dienstleistungszentrum im Neo-Bäderstil. Das Zentrum kombiniert Hotel, Gastronomie und Shopping in der ersten überdachten Mall der Insel. 

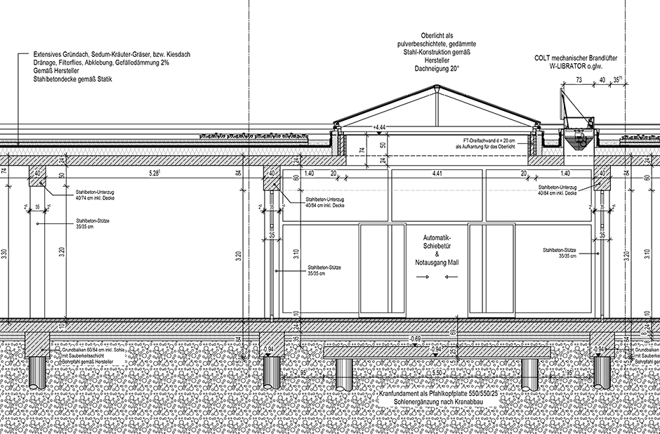
Ein über 20 m langes und rund 4 m breites Sattel-Lichtband mit 64 Velux Modular Skylights versorgt die Passage mit natürlichem Tageslicht.

Die großzügige Lichtdachlösung schafft eine ungefilterte und tageszeitabhängige Lichtstimmung im Inneren des Zentrums, der ungehinderte Blick in den Himmel trägt zum Wohlbefinden der Besucher bei. Innenliegenden Sonnenschutz-Rollos garantieren ein angenehmes Raumklima.

Die VELUX Modular Skylights sind Teil des Lüftungs- und Brandschutzkonzeptes. In das Sattel-Lichtband sind nicht nur feststehende Module, sondern auch NRWG-Module integriert, die zur natürliche Luftzirkulation und im Brandfall zur Entrauchung beitragen.

Bautafel


{{property.PropertyName}}

{{pValue.PropertyValue}}

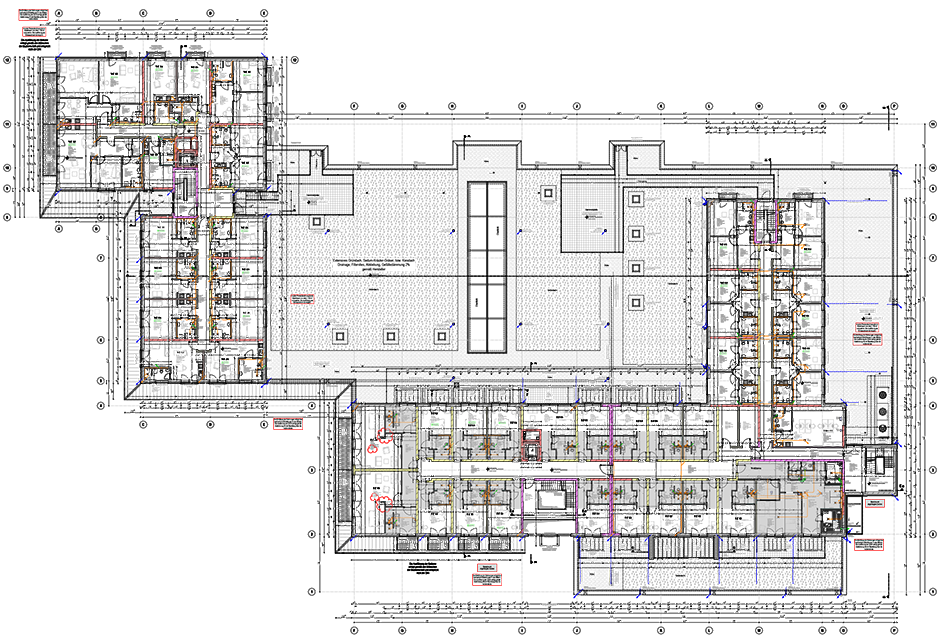
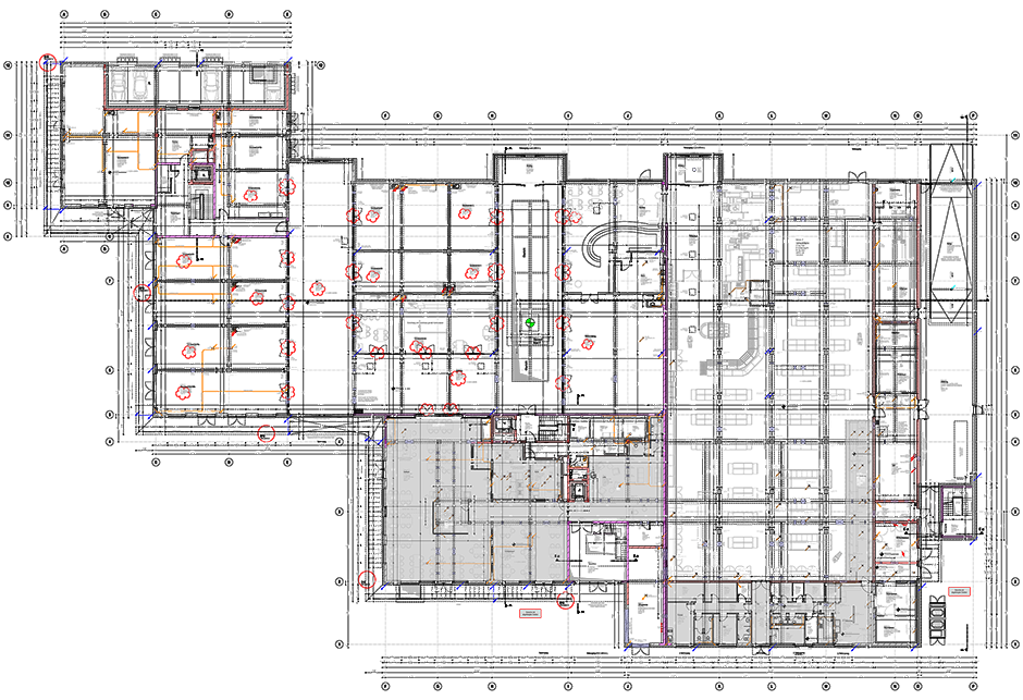
Architekturzeichnungen

Im Projekt verwendete Produkte

1 x Sattel-Lichtband

Sattel-Lichtband 25°–40°

Ein Sattel-Lichtdach-System für den Einbau auf einem Flachdach oder an einer Dachspitze.

Darstellung einer Sattel-Lichtband-Lösung Mehr erfahren

Anzahl der Module: 64

Sattel-Lichtband 25°–40°

Ein Sattel-Lichtdach-System für den Einbau auf einem Flachdach oder an einer Dachspitze.

Darstellung einer Sattel-Lichtband-Lösung Mehr erfahren

Sven Paulsen

Geschäftsführer des Bauherrn Entwicklungsgesellschaft Sylt mbH & Co. Bauplanungs KG

Dank der Lichtszenerie vergessen Besucher der Passage oft, dass sie sich gar nicht unter freiem Himmel befinden, sondern in geschlossenen Räumen aufhalten.

Ulrich Huber

IGA Haus GmbH & Co. KG

Wir haben uns bei der Wahl der Oberlichtlichtlösung für die eleganten, industriell vorgefertigten Modular Skylights von Velux entschieden, weil sie sich – im Gegensatz zu der traditionellen, erst vor Ort umgesetzten Metallbauweise – schnell und einfach montieren lassen.

Einbaufertige Bauteile ermöglichen eine rasche Montage

Die schnelle und einfache Montage der VELUX Modular Skylights hat die Entscheidung für ein industriell vorgefertigtes Produkt herbeigeführt.

“Die Elemente lassen sich montieren, ohne dass auf der Baustelle verschiedene Handwerker, Lieferanten und andere Gewerke involviert sind und das Material auf dem Dach geschnitten, angepasst oder auf andere Weise bearbeitet werden muss“, erklärt Ulrich Huber, IGA Haus GmbH & Co. KG.

„Bei der standardisierten Lösung von VELUX wurden die einbaufertigen Bauteile und Komponenten „just in time“ angeliefert und konnten dann von einem Kranfahrer und zwei Monteuren auf dem Dach in rasch wiederkehrenden Schritten montiert werden.“

Das modulare System-Icon

Das modulare System

Erfahren Sie mehr über Modularität, die wichtigsten Vorteile und unsere Zusammenarbeit mit Foster + Partners.

Entdecken Sie das modulare System
Projektunterstützung für VELUX Modular Skylights-Icon

Wir helfen Ihnen gerne.

Unsere Experten für Tageslicht-Systeme begleiten Sie durch den gesamten Prozess vom Entwurf bis zum Einbau.

Projektunterstützung

Lassen Sie sich inspirieren